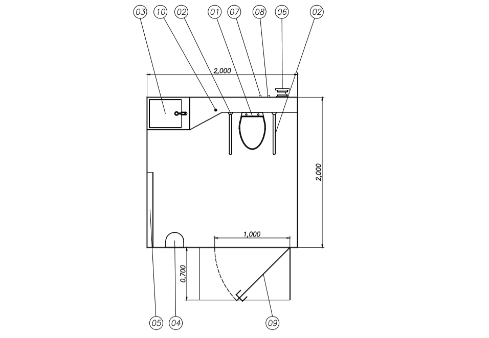
Hoogte : 2,520
                        
 Breedte : 2,000 (Opgelet! Totale breedte met steunen : 2,250)
                        
 Lengte : 2,000
                    
                    
                    
                        01. Toilet
                        
 02. Wegklapbare beugels
                        
 03. Wastafel
                        
 04. Afvalbak
                        
 05. Wegklapbare verzorgingstafel
                        
 06. Afvoer buis diameter 110
                        
 07. Stroomaansluiting 220 V ~
                        
 08. Wateraansluiting
                        
 09. Oprijplaat
                        
 10. Geluidsalarm